关于CAD快速看图打开云盘图纸提示“参照文件未上传”怎么处理

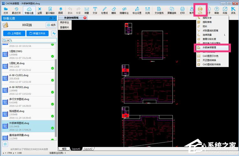
今天说说CAD快速看图打开图纸提示“外部参照未加载”的问题,小编已经向大家介绍了解决方法,不过最近有另外一个用户反映遇到了“参照文件 ...
今天说说CAD快速看图打开图纸提示“外部参照未加载”的问题,小编已经向大家介绍了解决方法,不过最近有另外一个用户反映遇到了“参照文件 ...
最近有用户反映,使用CAD快速看图打开图纸时提示“停止工作”,导致图纸无法正常打开,这让用户非常苦恼。那么,遇到这样的问题我们该怎么办呢?下面, ...
很多时候用户需要将自己的CAD图纸转换成PDF以便于携带存储和浏览,同时也可以方便的我来教你给他人浏览,安全性也非常的高,但是在AutoCAD没有的情况下如何将CAD图 ...
最近有AutoCAD用户反映,由于客户电脑没有安装AutoCAD软件,导致无法正常查看使用AutoCAD绘制的图纸,这让用户非常烦恼,其实,这个问题的解决方法很简单,将 ...
cad迷你看图打不开图纸怎么解决?cad迷你看图可以将DWG转换为图片,具有长度测量、面积测试等功能,在使用cad的时候发现打不开图纸要怎么办,下面就给大家我来教你具体 ...
CAD迷你看图是一款非常好用的文件查看软件,它可以快速的浏览图纸、转换图纸格式和图形文件管理等等,那么在CAD迷你看图里怎么转换图纸格式呢?下面就是在CAD迷你看图里将 ...
CAD快速看图是一款由广联达开发的CAD看图软件,拥有PC、Android、iOS等多种版本,功能也非常的多,比如可以对图纸进行查看、标记、测距等,当然CAD快速看图所 ...
CAD迷你看图是一款非常好用的图片编辑软件,可以在dwg文件里查看图纸,界面简洁使用也方便,那么,CAD迷你看图如何在dwg格式里查看图纸呢?下面就是如何在CAD迷你看 ...
最近有用户反映,使用CAD快速看图给图纸标注了长度、面积等内容,可是换台电脑查看该图纸的时候却发现刚刚标注的内容不见了。其实,CAD快速看图标注的内容是保存在当时操作的 ...
迅捷CAD编辑器是一款受到大家欢迎的CAD编辑软件,你知道迅捷CAD编辑器怎么设置图纸显示模式的吗?接下来我们呢一起往下看看迅捷CAD编辑器设置图纸显示模式的方法吧。 ...