1.首先用CAD快速看图打开图纸。

2.该图纸跟原图比为缩小,系数为0.8倍。对标注有尺寸的线段进行测量,发现原有7400的线段,实测只有5920。

3.接下来点击“比例”,测量刚才我们测量的那一段线。

4.输入实际尺寸7400,点击确定。

5.再次测量刚才标注的那条线,发现尺寸变成7400。

6.继续验证其余有标注数据的线段,发现尺寸符合,比例设置成功。

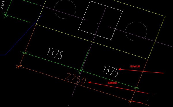
1.首先用CAD快速看图打开图纸。

2.该图纸跟原图比为缩小,系数为0.8倍。对标注有尺寸的线段进行测量,发现原有7400的线段,实测只有5920。

3.接下来点击“比例”,测量刚才我们测量的那一段线。

4.输入实际尺寸7400,点击确定。

5.再次测量刚才标注的那条线,发现尺寸变成7400。

6.继续验证其余有标注数据的线段,发现尺寸符合,比例设置成功。
